Une nuit face à la Loire

"Une maison bourgeoise familiale transformée en chambres d’hôtes

Rester fidèle à la personnalité de ses hôtes, tout en respectant le cahier des charges prévu pour cette maison.

Un exercice d’agilité entre l’écoute, l’attention, la compréhension et la prise en compte de contraintes techniques.

Dans ce projet, l’équilibre était aussi de « devenir » tout en « restant ».

Devenir, des chambres d’hôtes, avec une salle d’eau dans chaque chambre, avec, aussi, des espaces communs conviviaux et pratiques.

Et rester, une maison conviviale, généreuse, de voyageurs, d’artistes, d’objets chinés.

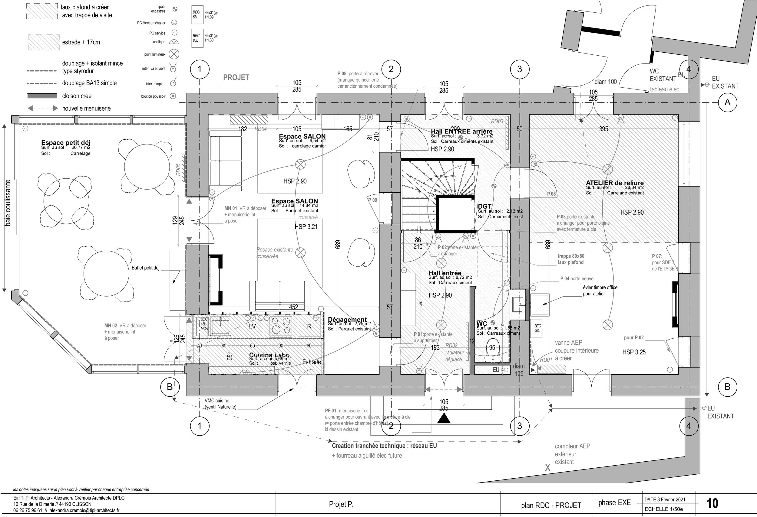
Prendre en compte les espaces annexes comme l’atelier de reliure.

Respecter une forte démarche éco-responsable.

Tout cela n’est possible qu’en prenant le temps de ne pas se précipiter, d’échanger, de co-construire. La base. L’essentiel."


Les plans …


Et avant c’était comment?:


Leur témoignage

La rencontre,

 

Alexandra a été à l’écoute de notre urgence. Nous avons pris beaucoup de risques en se lançant dans ce projet car le planning était très serré, et Alexandra y a cru tout de suite.

Nous avons perçu dès l'instant toute l’humanité et l’humilité qu’elle apporte à son travail.

C’est une archi intemporelle et passionnée, à l’écoute de ses clients, et de ce que les murs ont à raconter.

 

Un grand Merci !

 

Hélène et Jean-Marc

 
Retour aux Projets
Précédent
Précédent

La maison Atelier...

Suivant
Suivant

Se connecter au jardin…